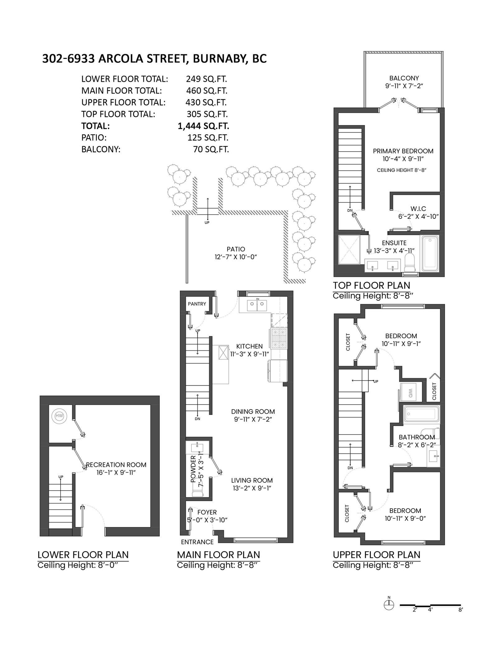
Welcome to Arcola by Kingswood - This 3-bed, 3-bath home features an open layout with no wasted space, perfect for modern living. The kitchen is equipped with quartz countertops, shaker-style cabinetry, s/s appliances with a 5-burner gas cooktop, soft-close drawers, & under-cabinet lighting. Upstairs, you will find two generously sized bedrooms, a stylish bathroom, & convenient laundry facilities. Above, the spacious primary suite offers a bright and airy retreat, complete with an ensuite, a walk-in closet, & French doors that open to a private balcony. The lower level is a versatile flex space, ideal for an office, media room, or playroom. Additional features include one underground parking spot with an EV station. Nestled in a family-friendly community, just minutes from everything!
Address
302 - 6933 Arcola Street
List Price
$1,049,900
Property Type
Residential
Type of Dwelling
Townhouse
Structure Type
Residential Attached
Transaction Type
Sale
Area
Burnaby South
Sub-Area
Highgate
Bedrooms
3
Bathrooms
3
Half Bathrooms
1
Floor Area
1,444 Sq. Ft.
Main Floor Area
460
Lot Features
Central Location, Recreation Nearby
Total Building Area
1444
Common Walls
2+ Common Walls
Year Built
2021
Maint. Fee
$403.18
MLS® Number
R3073551
Listing Brokerage
RE/MAX Westcoast
Basement Area
Finished, Exterior Entry
Postal Code
V5E 1H5
Zoning
RM3
Ownership
Freehold Strata
Parking
Underground, Guest, Lane Access, Rear Access, Concrete, Garage Door Opener
Parking Places (Total)
1
Tax Amount
$3,557.16
Tax Year
2024
Pets
Cats OK, Dogs OK, Number Limit (Two), Yes With Restrictions
Site Influences
Central Location, Recreation Nearby, Shopping Nearby
Community Features
Shopping Nearby
Appliances
Washer/Dryer, Dishwasher, Refrigerator, Microwave, Oven, Range Top
Association
Yes
Board Or Association
Greater Vancouver
Association Amenities
Trash, Maintenance Grounds, Management, Snow Removal
Heating
Yes
Heat Type
Baseboard, Electric
Garage
Yes
Laundry Features
In Unit
Levels
Three Or More
Number Of Floors In Property
3
Number Of Floors In Building
4
Window Features
Window Coverings
Subdivision Name
Arcola
